Thursday, January 26, 2012
Contemporary Mansion w/ Floor Plans
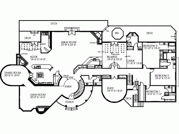
This contemporary house is over 10,000 square feet and has 7 bedrooms and 6 bathrooms. Some of the features in this house include formal living and dining rooms, a great room, large master suite, guest suite, billiards room, 2-story foyer, study/office, and more. Although this house hasn't been built yet, it looks like it could be a very interesting property. However, I think it will be outdated if the outside is kept like the exterior drawings. Click the link below for more information on this plan/house.
CLICK HERE FOR MORE INFORMATION
Subscribe to:
Post Comments (Atom)
 
 
 
No comments:
Post a Comment
Have something to say? Comments are encouraged!